Ukoliko ste ovu nekretninu vidjeli negdje drugdje po nižoj cijeni, ista cijena vrijedi i kod nas!
Link na često postavljena pitanja
Ne prikazuje se točna adresa nekretnine
Razgledavanje putem VIDEO POZIVA
NAZOVITE NAS 023 300 000

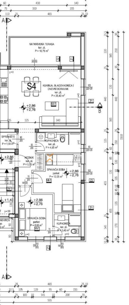
Na prodaju je atraktivan apartman u novogradnji, smješten u Rovanjskoj, svega 120 m od mora i 800 m od centra mjesta. Ukupna neto površina stana iznosi 70,88 m², uključujući natkrivenu terasu i pripadajući parking. Apartman se nalazi u modernoj zgradi s ravnim betonskim krovom. Posebnu vrijednost ovoj nekretnini daje odličan pogled na more.
Stan se sastoji od hodnika, dvije spavaće sobe – od kojih jedna ima vlastitu kupaonicu, dodatne kupaonice, kuhinje s blagovaonicom i dnevnim boravkom, ostave te natkrivene terase.
U kupaonicama je postavljeno podno električno grijanje, a prostorije su klimatizirane s ukupno tri klima uređaja – u dnevnom boravku i obje spavaće sobe. Stan ima PVC stolariju s troslojnim staklom, električnim roletama i komarnicima. Podovi su obloženi keramičkim pločicama, dok su ulazna vrata protuprovalna i protupožarna. Zgrada je građena ciglenim termo blokom, a fasada je izolirana stiroporom debljine 10 cm. Zgrada je u izgradnji, a završetak se očekuje 2026. godine. Predviđeni energetski certifikat je razreda A.
Smještena u uvali gdje se miješaju kontinentalna i morska klima, na samom kraju Podvelebitskog kanala Rovanjska je savršena za miran život i odmor. Odlična lokacija, direktni izlaz na autoput, 25 minuta vožnje do Zadra, 10 minuta do Starigrada te 250 km do glavnog grada Zagreba Rovanjska je postala turistička oaza koja nudi miran i ugodan odmor u Dalmatinskom ambijentu.
Više o mjestu pročitajte na linku Rovanjska.
Kompletnu ponudu naših nekretnina u Jasenicama možete vidjeti ovdje.
U istoj zgradi u ponudi su još: A1517, A1518, A1519, A1521, A1522.
Ukoliko ste ovu nekretninu vidjeli negdje drugdje po nižoj cijeni, ista cijena vrijedi i kod nas!
Link na često postavljena pitanja
