Ukoliko ste ovu nekretninu vidjeli negdje drugdje po nižoj cijeni, ista cijena vrijedi i kod nas!
Link na često postavljena pitanja
Ne prikazuje se točna adresa nekretnine
Razgledavanje putem VIDEO POZIVA
NAZOVITE NAS 023 300 000

Na prodaju je apartman koji se nalazi u mirnom dijelu Rovanjske, udaljen samo 120 m od mora i 800 m od centra. Zahvaljujući izvrsnoj lokaciji i pogledu na more, ova nekretnina predstavlja idealnu priliku za odmor ili ulaganje.
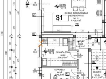
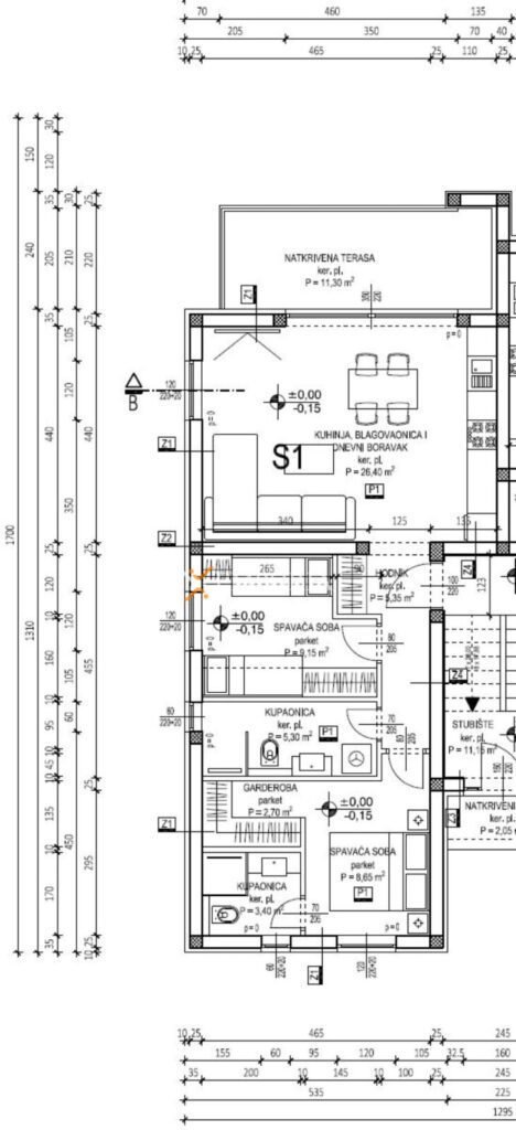
Stan se sastoji od hodnika, dvije spavaće sobe – od kojih jedna ima vlastitu kupaonicu i garderobu – još jedne kupaonice te kuhinje s blagovaonicom i dnevnim boravkom. Iz dnevnog dijela izlazi se na djelomično natkrivenu terasu. Neto korisna površina iznosi 71,76 m², a ukupna površina s pripacima je 81,18 m². Apartmanu pripada vlastiti vrt površine 66,71 m² i jedno parkirno mjesto.
Kupaonice su opremljene električnim podnim grijanjem, dok su u dnevnom boravku i spavaćim sobama postavljene tri klima uređaja. Objekt je građen od termo blok cigle, ima PVC stolariju s troslojnim staklima, komarnicima i elektroroletama. Fasada je izvedena sa 10 cm stiropor izolacijom, a podovi su obloženi pločicama. Ulazna vrata su protuprovalna i protupožarna. Krov zgrade je ravan, betonski, a završetak gradnje planiran je 2026. godine.
Zgrada će imati očekivani energetski certifikat A.
Smještena u uvali gdje se miješaju kontinentalna i morska klima, na samom kraju Podvelebitskog kanala Rovanjska je savršena za miran život i odmor. Odlična lokacija, direktni izlaz na autoput, 25 minuta vožnje do Zadra, 10 minuta do Starigrada te 250 km do glavnog grada Zagreba Rovanjska je postala turistička oaza koja nudi miran i ugodan odmor u Dalmatinskom ambijentu.
Više o mjestu pročitajte na linku Rovanjska.
Kompletnu ponudu naših nekretnina u Jasenicama možete vidjeti ovdje.
U istoj zgradi u ponudi su još: A1518, A1519, A1520, A1521, A1522.
Ukoliko ste ovu nekretninu vidjeli negdje drugdje po nižoj cijeni, ista cijena vrijedi i kod nas!
Link na često postavljena pitanja
