Ukoliko ste ovu nekretninu vidjeli negdje drugdje po nižoj cijeni, ista cijena vrijedi i kod nas!
Link na često postavljena pitanja
Ne prikazuje se točna adresa nekretnine
Razgledavanje putem VIDEO POZIVA
NAZOVITE NAS 023 300 000

Na drugom katu manje stambene zgrade u mjestu Seline, općina Starigrad, nalazi se ovaj apartman s odličnim pogledom na more. Zgrada ima ukupno četiri stambene jedinice, a apartman je udaljen samo 220 metara od mora i 2,5 kilometra od centra mjesta.
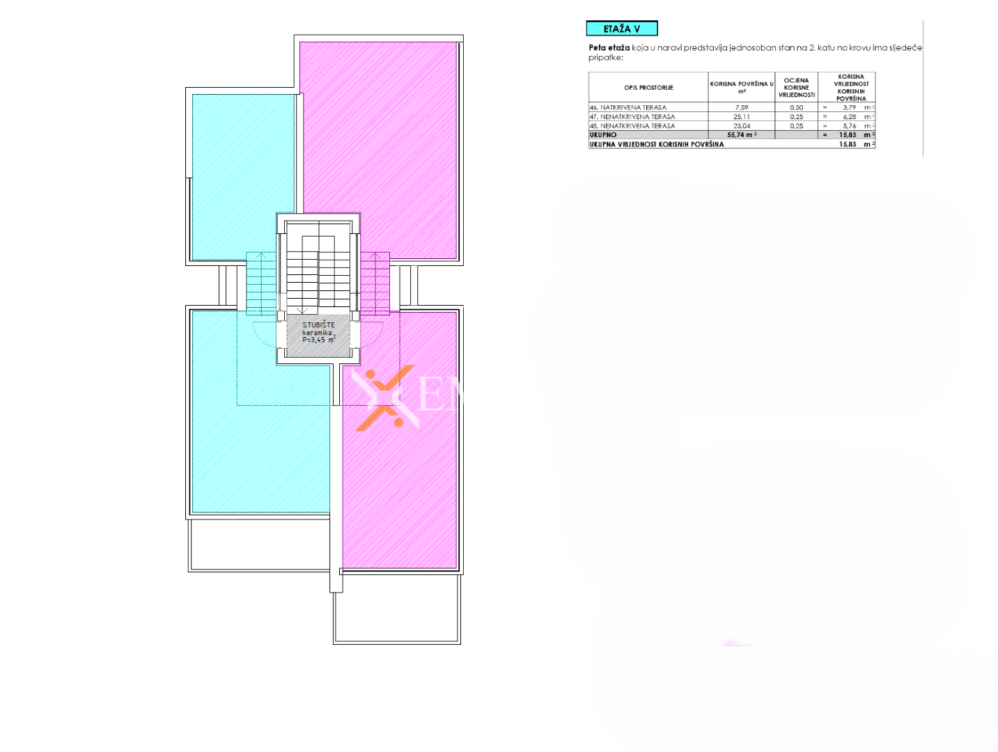
Neto površina zatvorenog dijela stana iznosi 57,87 m², dok ukupna neto površina s pripacima iznosi 76,45 m². Stan se sastoji od hodnika sa sedam stepenica koje tvore polu-etažu, dnevnog boravka s kuhinjom i blagovaonicom, jedne spavaće sobe, kupaonice, zasebnog WC-a i natkrivene terase. Pripaci uključuju jedno parkirno mjesto površine 2,75 m² te krovnu terasu s natkrivenim dijelom od 3,79 m² i dva nenatkrivena dijela površina 6,28 m² i 5,76 m² koje povezuju stepenice.
Ne plaća se porez na promet nekretnina.
Grijanje je omogućeno električnim podnim grijanjem u dnevnom boravku, kuhinji, blagovaonici i kupaonici. Hlađenje osiguravaju dvije unutarnje jedinice – u dnevnom boravku i u spavaćoj sobi.
Zgrada je građena ciglenim termo blokovima, fasada je obložena 10 cm stiroporom, a ugrađena je PVC stolarija. Podovi su obloženi pločicama, a ulazna vrata su protuprovalna i protupožarna. Pristup nekretnini omogućen je javnim asfaltiranim putem.
Očekivani energetski certifikat je A.
Seline su prekrasno mjesto na obali Velebitskog kanala s izuzetno lijepim plažama. Smještene su podno planina Velebita i Nacionalnog Parka Paklenica te pokraj centra rivijere i sjedišta općine Starigrad Paklenice. Svi svakodnevno potrebni sadržaji su u neposrednoj blizini. Ovo je krajolik i okolina koja će oduševiti sve ljubitelje prekrasne prirode. Spoj planina i mora uz odličnu modernu turističku ponudu oduševiti će svakoga.
Kompletnu ponudu naših nekretnina u Seline možete vidjeti ovdje.
Zgrada se sastoji od ukupno 10 stanova. U ponudi su još uvijek: A1508, A1509, A1511.
Ukoliko ste ovu nekretninu vidjeli negdje drugdje po nižoj cijeni, ista cijena vrijedi i kod nas!
Link na često postavljena pitanja
