Ukoliko ste ovu nekretninu vidjeli negdje drugdje po nižoj cijeni, ista cijena vrijedi i kod nas!
Link na često postavljena pitanja
Ne prikazuje se točna adresa nekretnine
Razgledavanje putem VIDEO POZIVA
NAZOVITE NAS 023 300 000

Na atraktivnoj lokaciji u mjestu Seline, Starigrad, samo 220 m od mora i 2,5 km od centra, nalazi se ovaj moderno projektirani apartman u prizemlju novogradnje s ukupno četiri stambene jedinice. Apartman nudi savršen spoj funkcionalnosti, udobnosti i iznimnog pogleda na more.
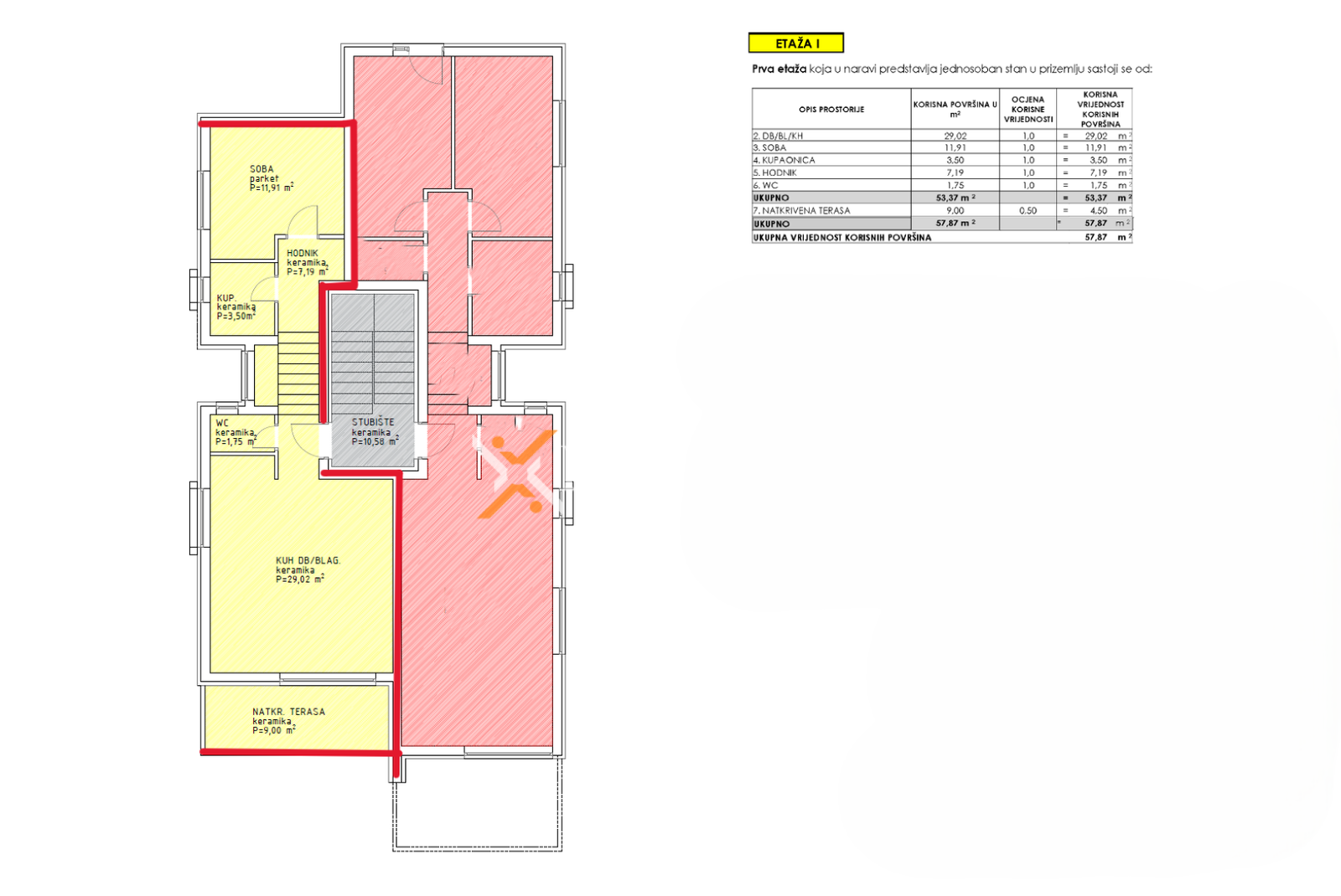
Ukupna neto površina s pripacima iznosi 66,26 m2. Stan uključuje vlastiti parking, vrt i žardinjeru, što dodatno povećava kvalitetu boravka.
Raspored:
Stan se sastoji od hodnika sa 7 stepenica koje vode na polu-etažu, otvorenog dnevnog boravka s blagovaonicom i kuhinjom, jedne spavaće sobe, kupaonice, zasebnog WC-a i natkrivene terase – idealne za uživanje na otvorenom uz pogled na more. Neto korisna površina zatvorenog dijela stana iznosi 57,87 m2.
Stan ima vlastito parkirno mjesto površine 13,75 m2, popločani vrtni dio (4,38 m2), zelenu površinu s travom (42,70 m2) te žardinjeru (4,85 m2). Grijanje je izvedeno putem električnog podnog grijanja u dnevnom boravku, blagovaonici, kuhinji i kupaonici, a ugrađene su dvije klima jedinice – u dnevnom boravku i spavaćoj sobi.
Zgrada je građena od ciglenih termo blokova, s PVC stolarijom i 10 cm stiropor fasadom. Podovi su obloženi pločicama, a ulazna vrata su protuprovalna i protupožarna. Pristup zgradi omogućen je asfaltiranim javnim putem.
Ne plaća se porez na promet nekretnina.
Očekivani energetski certifikat: A
Seline su prekrasno mjesto na obali Velebitskog kanala s izuzetno lijepim plažama. Smještene su podno planina Velebita i Nacionalnog Parka Paklenica te pokraj centra rivijere i sjedišta općine Starigrad Paklenice. Svi svakodnevno potrebni sadržaji su u neposrednoj blizini. Ovo je krajolik i okolina koja će oduševiti sve ljubitelje prekrasne prirode. Spoj planina i mora uz odličnu modernu turističku ponudu oduševiti će svakoga.
Kompletnu ponudu naših nekretnina u Seline možete vidjeti ovdje.
Zgrada se sastoji od ukupno 10 stanova. U ponudi su još uvijek: A1509, A1510, A1511.
Ukoliko ste ovu nekretninu vidjeli negdje drugdje po nižoj cijeni, ista cijena vrijedi i kod nas!
Link na često postavljena pitanja
