Ukoliko ste ovu nekretninu vidjeli negdje drugdje po nižoj cijeni, ista cijena vrijedi i kod nas!
Link na često postavljena pitanja
Ne prikazuje se točna adresa nekretnine
Razgledavanje putem VIDEO POZIVA
NAZOVITE NAS 023 300 000

Prodaje se odličan apartman u novogradnji koja je dovršena i odmah useljiva. Zgrada se nalazi svega 70 m od mora, a iz apartmana se pruža i djelomičan pogled na more.
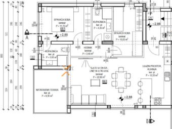
Ovo je stan na prvom katu. Raspored prostorija čine hodnik, spavaća soba, spavaća soba s kupaonicom, kupaonica, kuhinja s blagovaonicom i dnevnim boravkom te natkrivena terasa. Neto korisna površina stana s terasom iznosi 73,30 m2. Osim toga, apartmanu dodatno pripadaju 2 parkirališna mjesta.
Ukupna neto korisna površina ovog apartmana sa svim pripatcima iznosi 78,30 m2.
Zgrada se sastoji od ukupno 6 stanova. Od centra mjesta Privlaka je ova nekretnina udaljena svega 1,2 km.
Gradnja je izvršena ciglenim termo blokom. Fasada ima termoizolaciju od stiropora debljine 10 cm. Podne obloge su pločice. Prozori su od PVC materijala s troslojnim staklom, roletama i komarnicima. Dnevni boravak i spavaće sobe su klimatizirani. U cijelom stanu je provedeno podno grijanje na struju. Ulazna vrata stana su protuprovalna i protupožarna.
Za ovu se nekretninu očekuje energetski certifikat A+.
Privlaka je malo ribarsko i turističko mjesto udaljeno samo 15 minuta vožnjom od grada Zadra, smještena na prostranom pješčanom poluotoku između kraljevskog grada Nina i otoka Vira. Čisto more i duge, plitke pješčane uvale stvorene su za opuštanje u potpunosti. Mjesto nudi sav potreban sadržaj za ugodan i kvalitetan život: trgovine, restorane, poštu, ambulantu. Ljubitelji sporta, rekreacije koji se žele okušati u jedrenju ili surfanju pronaći će svoj kutak raja u obližnjim naseljima. Sve što trebate za miran i opuštajući obiteljski odmor u mediteranskom stilu možete ovdje pronaći.
Ponudu nekretnina u Privlaci možete vidjeti ovdje.
Ukoliko ste ovu nekretninu vidjeli negdje drugdje po nižoj cijeni, ista cijena vrijedi i kod nas!
Link na često postavljena pitanja
