Ukoliko ste ovu nekretninu vidjeli negdje drugdje po nižoj cijeni, ista cijena vrijedi i kod nas!
Link na često postavljena pitanja
Ne prikazuje se točna adresa nekretnine
Razgledavanje putem VIDEO POZIVA
NAZOVITE NAS 023 300 000

Prodaje se jako lijepa kuća smještena uz more i lijepe plaže u Selinama, podno Velebita i u blizini Nacionalnog Parka Paklenica. Južni apartmani imaju prekrasan pogled na more.
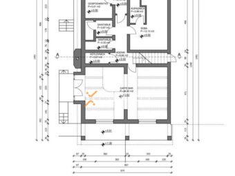
Kuća se sastoji od Suterena, prizemlja, prvog i potkrovlja. U suterenu se nalazi ugostiteljski objekt- caffe bar te kotlovnica, 2 WC-a, ostava, hodnik, kupaonica te ure. Površina suterena iznosi 76,39 m2. U prizemlju su hodnik i još 4 apartmana. Prizemlje je površine 186,24 m2. Na prvom katu i u potkrovlju je preostalih 5 apartmana. Površina prvog kata zajedno s potkrovljem iznosi 185,47 m2.
Ukupna površina kuće iznosi 448,10 m2. Izgrađena je na zemljištu površine 930 m2. U dvorištu može parkirati više od 7 vozila.
Pored kuće je zaseban objekt s wellness dijelom. Taj sadrži finsku saunu i hamam te jacuzzi. Pored kuće je i dječje igralište.
Ovo je odlična nekretnina za bavljenje turizmom. Uspješno posluje već godinama.
Moguće je uz kuću kupiti susjedno zemljište površine 575 m2.
Kompletan namještaj je uključen u cijenu. Gradnja kuće je izvedena ciglenim termoblokom s termoizolacijom od stiropora debljine 8 cm. Podne obloge su pločice i parket. Veći dio prozora je od PVC materijala. U svega 3 apartmana su drveni prozori. Svaki apartman kao i ured su klimatizirani. U suterenu i prizemlju je provedeno centralno grijanje na pelete. Kuća ima solarne panele za proizvodnju tople vode.
Seline su prekrasno mjesto na obali Velebitskog kanala s izuzetno lijepim plažama. Smještene su podno planina Velebita i Nacionalnog Parka Paklenica te pokraj centra rivijere i sjedišta općine Starigrad Paklenice. Svi svakodnevno potrebni sadržaji su u neposrednoj blizini. Ovo je krajolik i okolina koja će oduševiti sve ljubitelje prekrasne prirode. Spoj planina i mora uz odličnu modernu turističku ponudu oduševiti će svakoga.
Kompletnu ponudu naših nekretnina na području rivijere Starigrad možete vidjeti na sljedećem linku: Nekretnine Starigrad
Ukoliko ste ovu nekretninu vidjeli negdje drugdje po nižoj cijeni, ista cijena vrijedi i kod nas!
Link na često postavljena pitanja
