Građevinsko zemljište s projektom za izgradnju vile, 1380 m2, Turanj
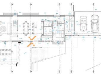
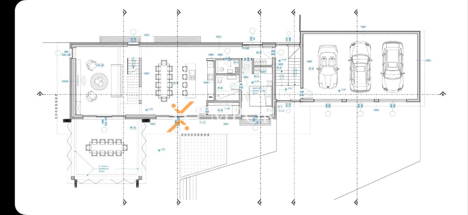
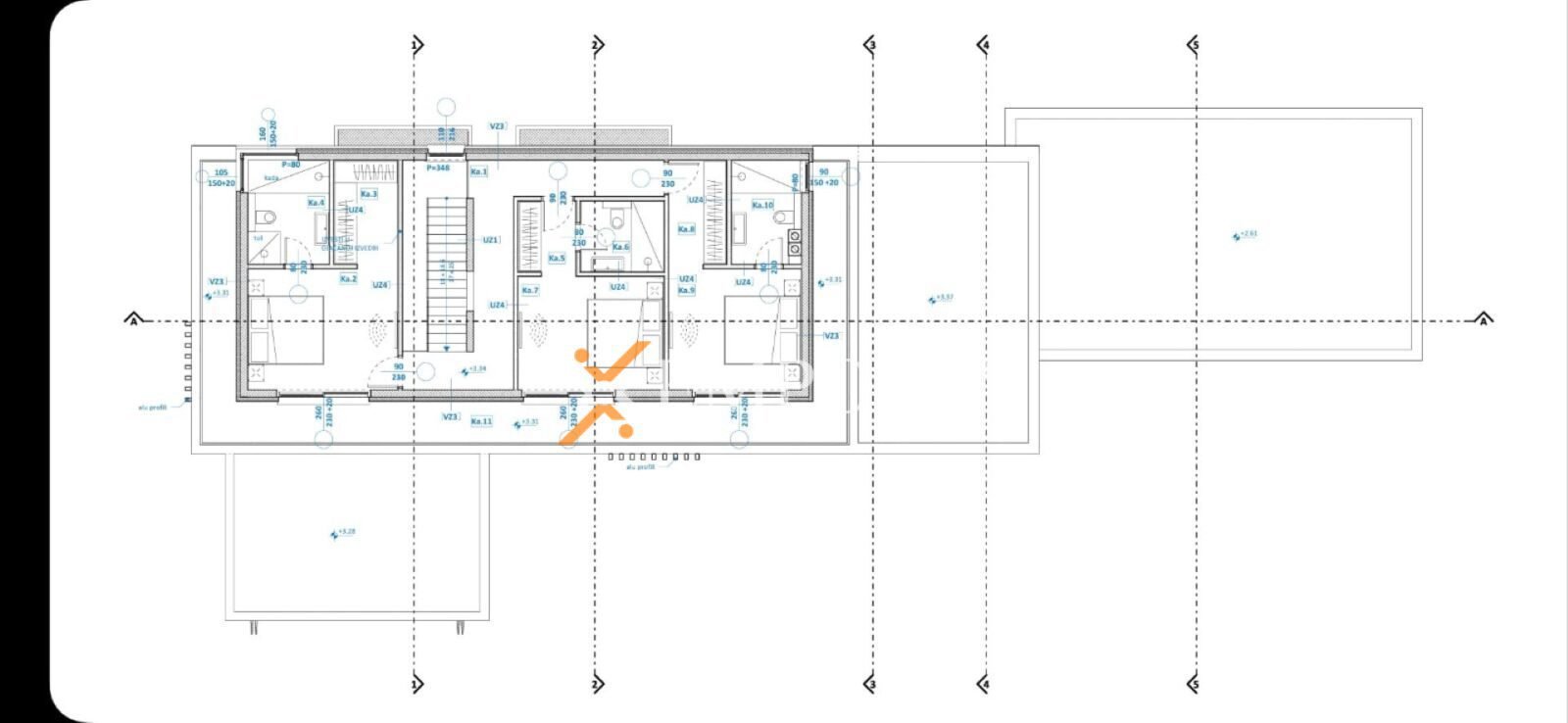
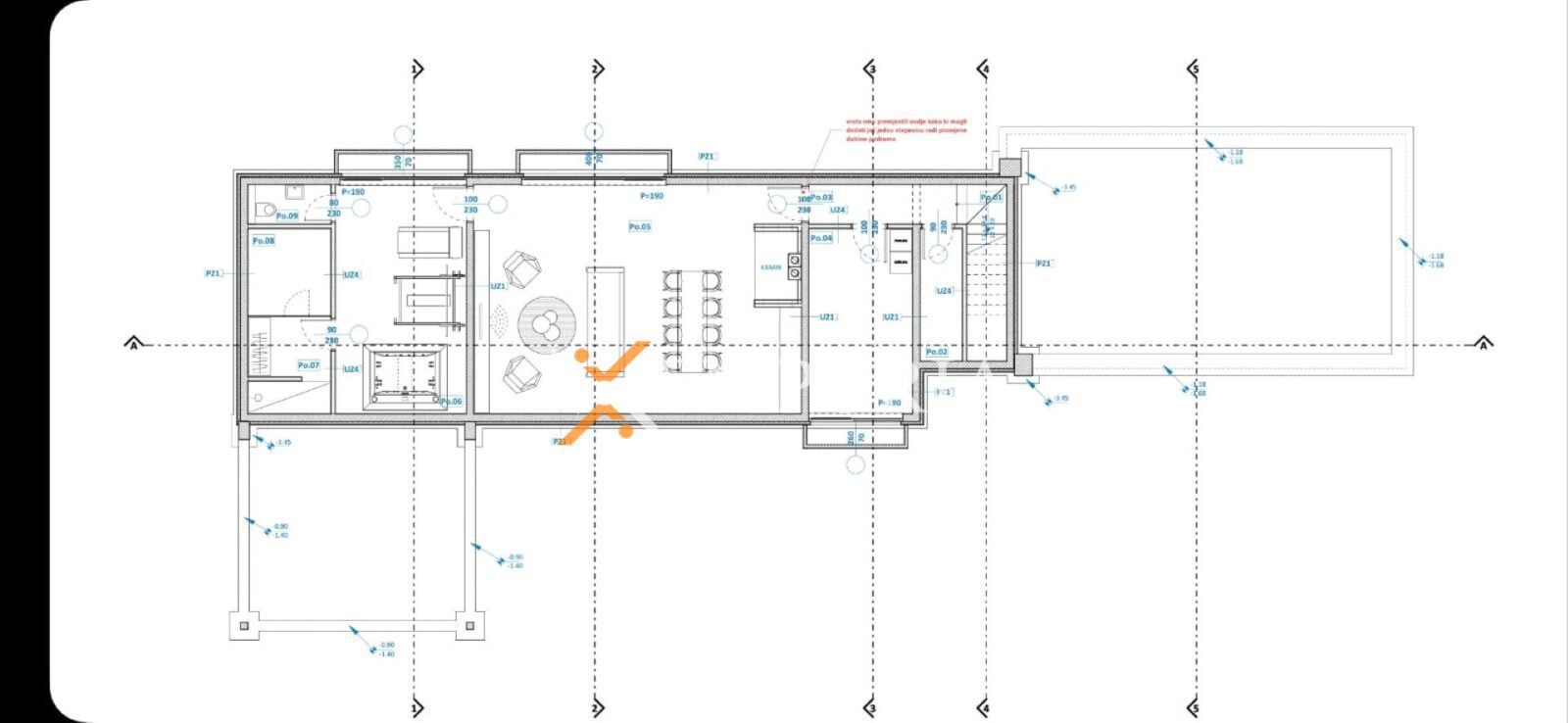
Prodaje se građevinsko zemljište s projektom za izgradnju vile s bazenom. Ishođenje građevinske dozvole za vilu je već u tijeku što će ubrzati početak gradnje za kupca. Zemljište je površine 1380 m2.
Sa zemljišta se pruža predivan pogled na more.
Udaljenost od mora je 1 km, dok je udaljenost od centra mjesta samo 170 m.
Posjedujemo svu potrebnu dokumentaciju – slobodno nas kontaktirajte za više informacija!
Lokacija
Turanj je pitoreskno turističko mjesto spojeno šetnicom „Lungo mare“ sa središtem Sv. Filip i Jakovom. Blizina većih središta, a ipak dovoljno udaljeno od vreve i gužve čine ovo mjesto još poželjnijim za odmor. Mjesto se prostire uz 4 km dugu obalu, uz Pašmanski kanal okružen malim arhipelagom sa 16 otočića. Poseban šarm mjestu daje mnoštvo „mulića“ koji pružaju sigurno privezište malenim brodicama.